Graz - Eggenberg:
Bezaubernde DG-Wohnung in Eggenberg Nähe FH Joanneum
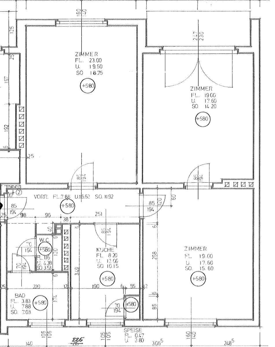
Objekt-Nr.: GB0056


















Preis:
165.000 €
Wohnfläche ca.:
41,87 m²
Zimmeranzahl:
2
Diese entzückende kleine Wohnung liegt im DG eines Altbaus welcher umfassend saniert wurde und im Zuge der Sanierung das DG ausgebaut wurde.
Zur Verfügung stehen 1 Vorraum, 1 WC, 1 Küche-, Wohn- und Essbereich, 1 Schlafzimmer und 1 Bad mit Dusche.
Weiters können Sie Ruhe, frische und Sonne in der hofseitige Dachterrasse genießen.
Abgerundet wird das hervorragende Gesamtbild durch eine ausgezeichnete Infrastruktur wie Hofer, Billa, Apotheke, Bus und Straßenbahn in der Nähe. Fußläufig sind die FH Joanneum sowie das LKH West und das UKH in nur wenigen Minuten erreichbar.
Betriebskosten netto: 164,18 € zzgl. 10.00% USt.
Heizkosten netto: 44,17 € zzgl. 20.00% USt.
Wohnungstyp: Dachgeschoss
Provision: 3 %
Nutzfläche ca.: 41,87 m²
Küche: Einbauküche
Bad: Dusche
Anzahl Schlafzimmer: 1
Anzahl Badezimmer: 1
Terrasse: 1
Dachboden: ja
Umgebung: Apotheke, Bus, Einkaufscenter, Krankenhaus, Spielplatz
Qualität der Ausstattung: normal
Baujahr: 2010
Bezugsfrei ab: sofort
Bodenbelag: Fertigparkett, Fliesen
Zustand: neuwertig
Heizung: Zentralheizung
Befeuerungsart: Gas
Energietyp: Neubaustandard
Die von uns gemachten Informationen beruhen auf Angaben des Verkäufers bzw. der Verkäuferin. Für die Richtigkeit und Vollständigkeit der Angaben kann keine Gewähr bzw. Haftung übernommen werden. Ein Zwischenverkauf und Irrtümer sind vorbehalten.
Wir weisen auf unsere Allgemeinen Geschäftsbedingungen hin. Durch weitere Inanspruchnahme unserer Leistungen erklären Sie die Kenntnis und Ihr Einverständnis.
Das könnte Ihnen auch gefallen
K&M Immoverbund
Herr Günther Bernhard
Theodor Körner Straße 75
8010 Graz
Telefon: 43 664 5340252






























